香醍漫步
更新時間:2017-05-31
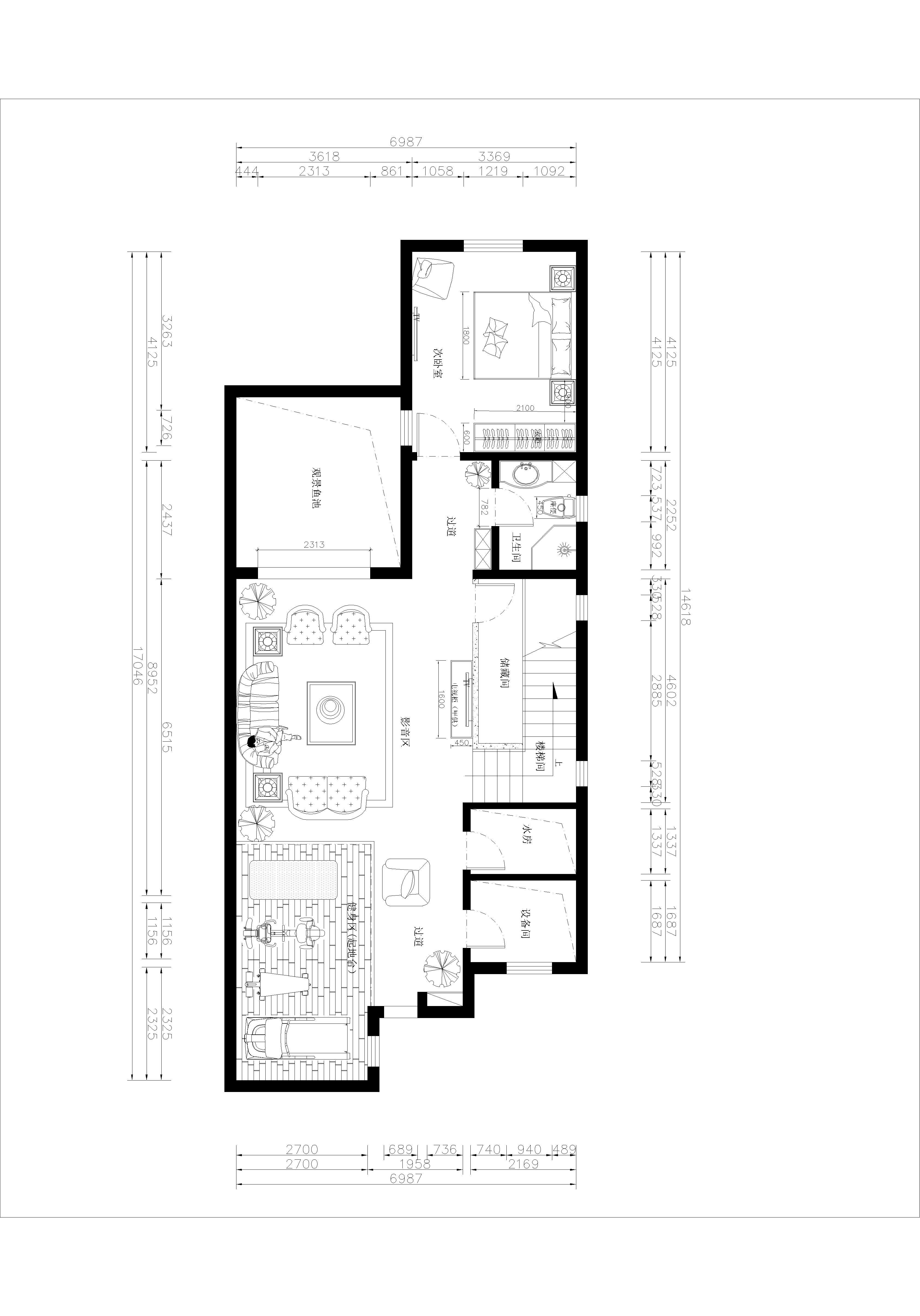
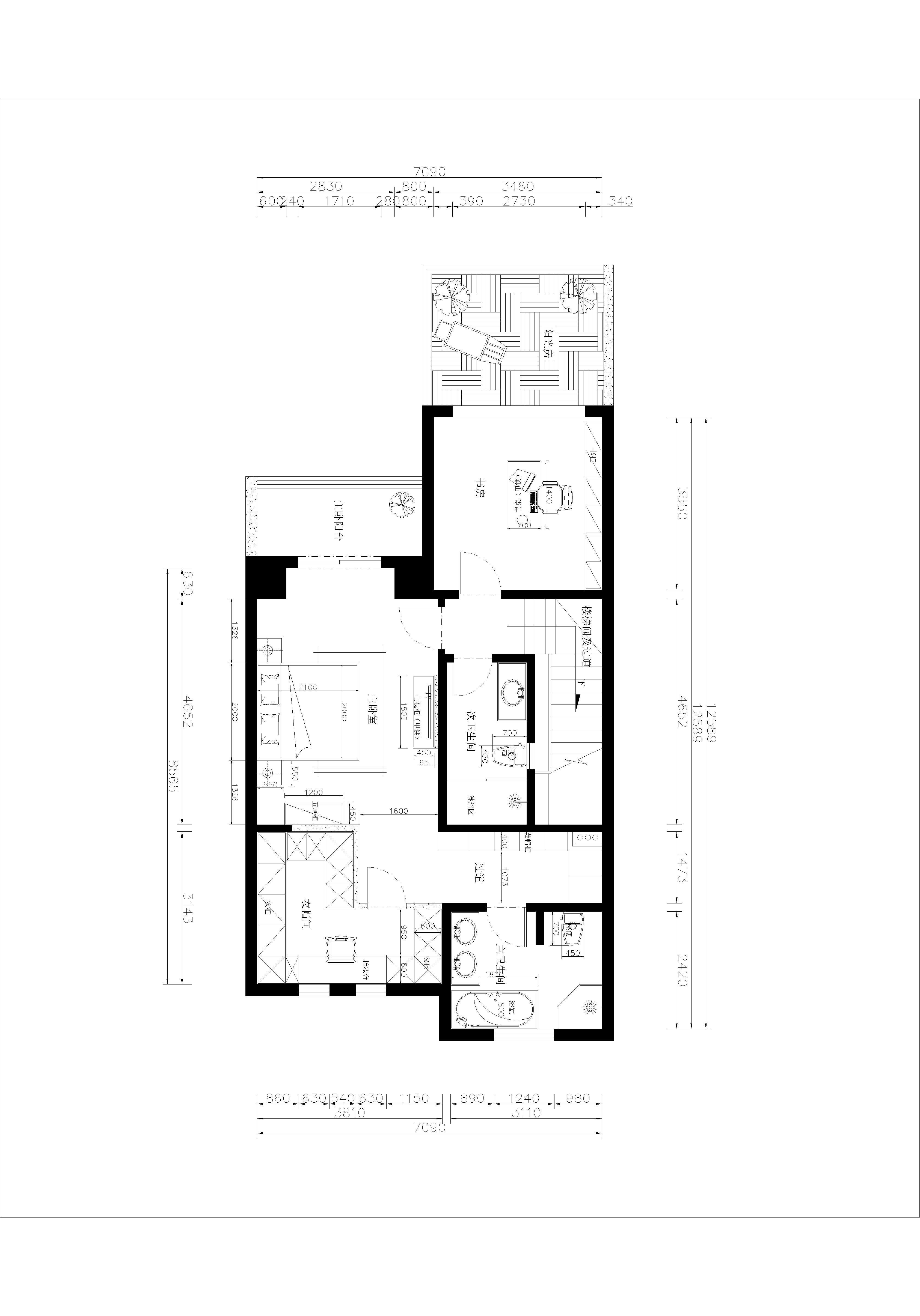
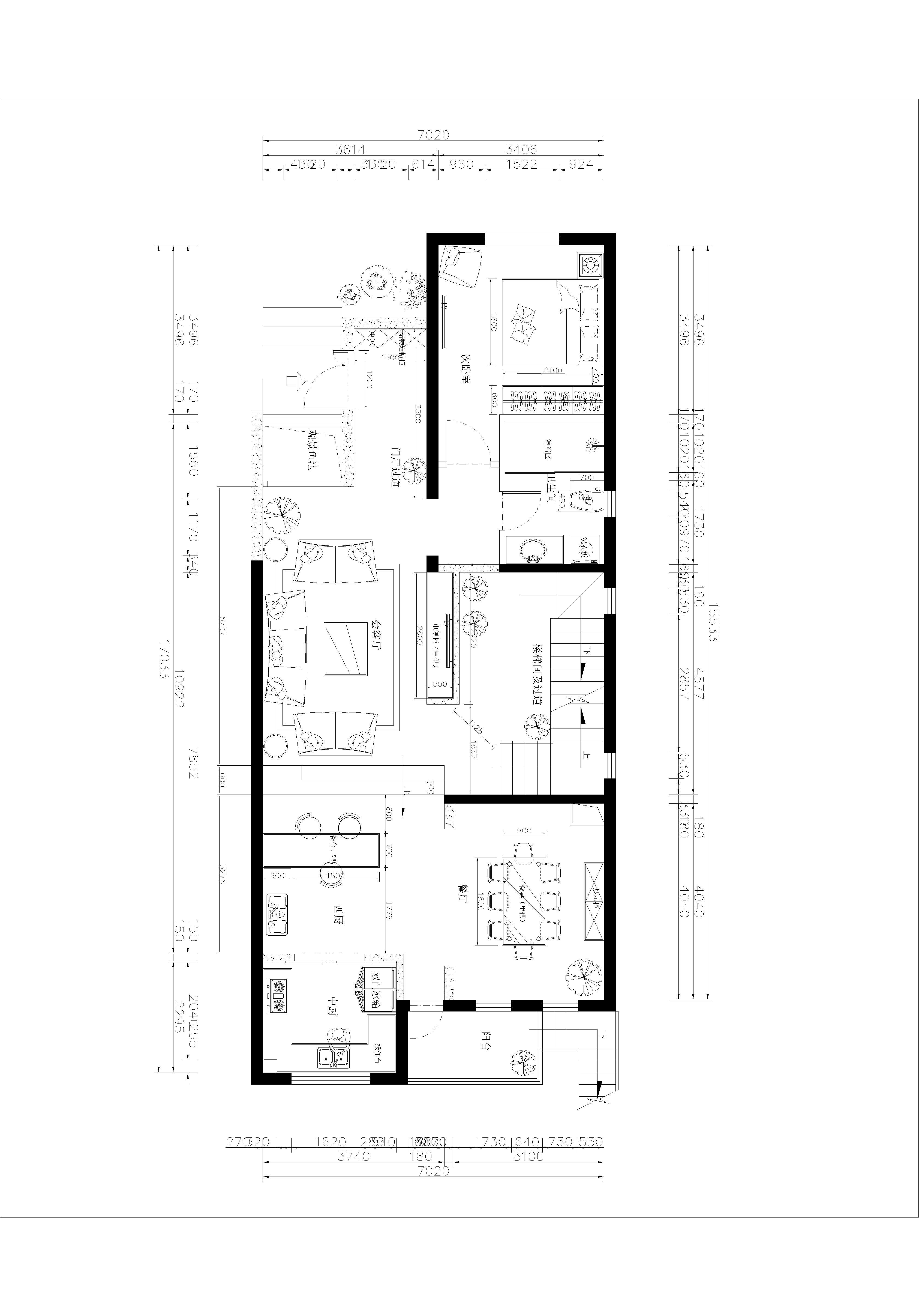
| 設計風格 | 簡約美式 | 戶型案例 | 別墅 | 案例面積 | 320 |
|---|---|---|---|---|---|
| 樓盤名稱 | 香醍漫步 | 所在城市 | 北京 | 案例造價 | 60萬 |
| 設計師 | |||||

案例說明:
這是一套以美式風格為主搭配簡約風格的設計方案,設計上追求美式自然、大氣的特點,同時考慮到業(yè)主夫婦比較年青,喜歡時尚,因此加入了不少時尚簡約的設計元素加以精細的后期配飾融入到設計風格之中,使這個居室更加完美!
同風格案例:更多>>
同面積案例:
| 客服專線: | 010-84580331 | 加盟專線: | 010-82272748 | (工作日:9:00-18:00) |
預約加盟
預約裝修
客戶服務
返回頂部
闊達標準工程,一看就不同!
全國累計已有一百余家加盟公司
免費獲得家裝服務
全國各地業(yè)主都在申請!
闊達裝飾竭誠為您服務!
| 設計風格 | 簡約美式 | 戶型案例 | 別墅 | 案例面積 | 320 |
|---|---|---|---|---|---|
| 樓盤名稱 | 香醍漫步 | 所在城市 | 北京 | 案例造價 | 60萬 |
| 設計師 | |||||

這是一套以美式風格為主搭配簡約風格的設計方案,設計上追求美式自然、大氣的特點,同時考慮到業(yè)主夫婦比較年青,喜歡時尚,因此加入了不少時尚簡約的設計元素加以精細的后期配飾融入到設計風格之中,使這個居室更加完美!